Ürün Açıklaması
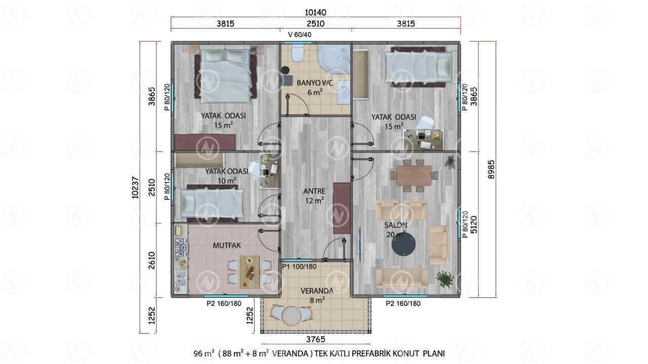
Fonksiyonellik ve ferahlığı bir arada arayan geniş aileler için tasarlanan 96 m² tek katlı prefabrik ev modelimiz, 88 m² genişliğindeki kapalı kullanım alanı ve 8 m²'lik şirin verandası ile 3+1 konut standartlarını yeniden tanımlıyor.
Bu proje, metrekare kaybını minimuma indiren merkezi planı sayesinde, koridorlarda sıkışıp kalmak istemeyen, evin her noktasında ferahlık arayanlar için idealdir. Özellikle evin tam kalbinde yer alan geniş antre, odalar arasındaki dağılımı sağlarken eve derinlik ve zenginlik katar.
Oda Metrekare Dağılımı
Görseldeki mimari plana göre 3+1 evin net kullanım alanları şöyledir:
Salon: 20 m²
Mutfak: 10 m² (Ayrı Mutfak - Tahmini ölçü)
Yatak Odası 1: 15 m²
Yatak Odası 2: 15 m²
Yatak Odası 3: 10 m²
Banyo & WC: 6 m²
Antre (Hol): 12 m²
Veranda: 8 m²
Projenin Mimari Özellikleri ve Avantajları
Evin girişinde yer alan 8 m²'lik veranda, sizi doğrudan evin merkezine, yani 12 m² büyüklüğündeki ana antreye ulaştırır. Bu antre, bir koridordan çok, evin dağılım meydanı gibidir; tüm odalara buradan erişim sağlanır.
Eşit Büyüklükte Geniş Odalar: Planın arka cephesinde yer alan iki yatak odası da 15'er m² olarak tasarlanmıştır. Bu simetrik yapı, odalar arasında "büyük oda - küçük oda" ayrımını ortadan kaldırarak adil bir kullanım alanı sunar.
Geniş Salon: 20 m²'lik salon, geniş pencereleriyle gün boyu aydınlık bir oturma alanı sağlar ve kalabalık misafirleri ağırlamak için yeterli alana sahiptir.
Ayrı Mutfak: Salonun karşısında, girişin solunda yer alan mutfak, salondan bağımsızdır. Yemek hazırlığı sırasında kokuların diğer odalara yayılmasını önleyen bu yerleşim, klasik mutfak severler için büyük bir artıdır.
Ekstra Oda: Girişin hemen solunda bulunan 10 m²'lik üçüncü oda, çocuk odası, çalışma odası veya misafir odası olarak değerlendirilebilir.
Banyo ve WC alanı ise (6 m²), iki büyük yatak odasının tam ortasında konumlandırılarak gece kullanımında erişim kolaylığı sağlar. 96 m²'lik bu model, hem yazlık hem de kalıcı konut olarak geniş ve konforlu bir yaşam vaat eder.






