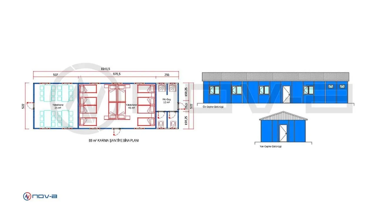
Ürün Açıklaması
Orta ve küçük ölçekli şantiyelerde veya büyük projelerin öncü mobilizasyon süreçlerinde, tüm yaşamsal fonksiyonların tek bir yapıda çözülmesi büyük avantaj sağlar. Bu örnekte görülen 88 m²’lik karma şantiye binası; barınma, beslenme ve hijyen alanlarını tek bir blokta toplayan "hepsi bir arada" (all-in-one) iç mekân planına sahiptir.
Plan; personelin bina dışına çıkmadan temel ihtiyaçlarını giderebileceği, operasyonel maliyetleri düşüren entegre bir yaşam alanı sunar.
Yatakhane (Koğuş) — 45 m² Binanın merkezinde yer alan, ranzalı sisteme uygun geniş yapısıyla çok sayıda personelin konaklayabileceği ana uyku bölümü. Doğrudan dışarıya açılan kapısı ve pencereleri ile havadar bir ortam sağlar.
Yemekhane — 25 m² Planın sol kanadında, yatakhaneden bağımsız bir girişi olan, personelin yemek yiyip dinlenebileceği, masa ve sandalye düzenine uygun refektör alanı.
WC ve Duş Ünitesi — 13 m² Binanın sağ kanadına konumlandırılmış, içerisinde 2 adet duş kabini ve 2 adet WC barındıran, lavabo alanıyla tamamlanmış ortak kullanım ıslak hacim bloğu.
Plan, "Ye, Uyu, Temizlen" döngüsünü en kısa mesafede ve en ekonomik şekilde çözer. Yatakhane ve yemekhanenin ayrı girişlere sahip olması, vardiyalı çalışan ekiplerin birbirini rahatsız etmesini önlerken, WC-Duş ünitesinin binaya dahil olması dışarıdaki hava koşullarından etkilenmeden kullanım konforu sağlar.
Bu prefabrik karma şantiye binası planı; işçi kampı kurulumunda alandan ve bütçeden tasarruf etmek isteyen işletmeler için en pratik çözümdür. Yol şantiyeleri, maden arama sahaları veya tarım işçisi konaklama alanları için idealdir.



